Tọa lạc tại vị trí đắc địa nhất của trung tâm Ngoại Giao Đoàn, chung cư Phú Mỹ Complex N01 – T4 chiếm vị trí đắc địa và đẹp nhất mang đến cho cư dân sự hài lòng nhất khi lựa chọn. Mặt trước của chung cư Phú Mỹ Complex là tuyến đường trục chính rộng 60m, mặt phía sau chung cư là công viên Đại Sứ và hồ nước.
Đây là khu vực hành chính của thủ đô và là khu Ngoại Giao mới của Việt Nam. Từ chung cư Phú Mỹ Complex đến các trung tâm, sân bay và khu vực quan trọng khác của Hà Nội đều rất thuận tiện và di chuyển nhanh nhờ các tuyến đường giao thông huyết mạch mới rộng. Đồng thời kết nối một cách linh hoạt như tuyến đường Nguyễn Văn Huyên, vành đai 2 và tuyến đường sắt đô thị.
Tổng quan dự án
Chủ đầu tư cấp 1: Tổng công ty xây dựng Hà Nội
Chủ đầu tư cấp 2: Công ty Cổ phần Bất động sản Phú Mỹ
Đơn vị thi công: Công ty Cổ phần Đầu tư Lạc Hồng
Đơn vị tư vấn: Liên danh Cubic – Group 8 Asia Thụy Sĩ
Diện tích: 1828 m2
Tổng diện tích sàn: 50.925 m2
Tổng diện tích xây dựng khối đế: 13.685m2
Quy mô: 3 tầng hầm nổi và 36 tầng nổi
Số lượng căn hộ: 287 căn (từ tầng 6- tầng 36)
Tầng 1: Ngân hàng, Café, bar
Tầng 2- 5: Văn phòng hạng A
Tầng dịch vụ: tiêu chuẩn 5 sao
Tổng diện tích tầng hầm: 9.240m2
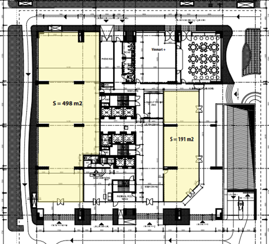
Tầng 1: mặt bằng thương mại
191m2: café, bánh ngọt cao cấp
498m2: ngân hàng, showroom.
Giá thuê: 23$+2$+VAT, không chia lẻ diện tích, mặt trong đã có Vinmart+ thuê

Tầng 2;3: Không cho thuê, chỉ bán nguyên sàn dài hạn 50 năm
Diện tích bán: khoảng 1522 m2
Giá bán: 30 triệu/m2/tháng (Giá trên chưa có VAT, phí dịch vụ và 2% kinh phí bảo trì)
Chủ đầu tư ưu tiên bán nguyên sàn

Tầng 5: khu văn phòng
Văn phòng, TTTA, bảo hiểm: 1333,2m2/sàn; chia nhỏ 116,6m2.
Giá thuê: 11-13$+ 2$+ VAT

Phú Mỹ N01T4 tọa lạc tại vị trí trung tâm khu Đoàn Ngoại Giao một trong những khu đô thị đẹp nhất hiện nay, chiếm vị trí đắc địa và đẹp nhất khu Đoàn Ngoại Giao. Đoàn Ngoại Giao luôn được mệnh danh là hồn cốt của xứ Thăng Long rồng bay. Hồ Tây ngoài vẻ đẹp kiêu hãnh với danh vị “Danh thắng đệ nhất Kinh Kỳ” còn là nơi linh khí hội tụ, phong thủy hanh thông, cuộc sống thịnh vượng.
Vị trí thuận tiện kết nối giao thông với các tuyến đường lớn: Phạm Văn Đồng, Nguyễn Văn Huyên, vành đai 2,3 và hệ thống đường sắt đô thị. Được bao bọc bởi hệ thống sông, hồ và các công viên, không gian mở mà con người và thiên nhiên luôn được giao hòa cùng nhau.
Dự án được quản lý bởi một đơn vị quản lý chuyên nghiệp, trang bị thiết bị giám sát an ninh cao cấp cùng đội ngũ nhân viên giàu kinh nghiệm, nhiệt tình và chu đáo.

Đặt cọc: 3 tháng
Thanh toán: 3-6 tháng/lần
Thời hạn thuê: Tối thiểu 3 năm trở lên
Thời gian miễn phí làm fitting out: 1-2 tháng tùy diện tích thuê của khách
Thay đổi giá thuê: Cố định trong 1-2 năm đầu, những năm tiếp theo thay đổi giá mỗi năm/lần nhưng không tăng quá 10% so với kỳ thanh toán trước đó
Điều kiện bàn giao: Bàn giao đầy đủ trần thạch cao, điều hòa âm trần, đèn. Tường xung quanh sơn lót, PCCC, máy phát điện dự phòng
Phí dịch vụ: 2$/m2/tháng chưa có VAT
Phí dịch vụ bao gồm: Phí quản lý, bảo vệ vòng ngoài, cây xanh, điện chiếu sáng, nước khu vực công cộng, phí bảo trì, bảo dưỡng chung của tòa nhà.
Thông tin chi tiết quý khách vui lòng liên hệ:
HOTLINE: 0919 50 1881
Phòng Kinh doanh Cho Thuê Văn Phòng
Công ty cổ phần Dịch vụ và Địa ốc Đất Xanh Miền Bắc
Bởi chuyên viên bất động sản có bề dày kinh nghiệm và uy tín của Đất Xanh Miền Bắc
sẵn sàng trợ giúp và cung cấp thông tin về dự án tới quý khách hàng.
Vui lòng liên hệ
Hotline Dự án: 0917 61 2020
Hotline Chăm sóc Khách hàng: 1800 6366 - 0919 75 3300
Chúng tôi sẽ liên hệ lại trong thời gian sớm nhất !
Chúng tôi sẽ liên hệ lại trong thời gian sớm nhất !